
【康城一品】全屋護墻+開敞公區域,這種輕奢時尚感真的絕了!
在這個家里,空間是有規則的,是簡約、時尚的,具有經典和永恒的氣質。

【項目·信息】
地址 / 康城一品
戶型 / 三室兩廳
面積 / 170㎡
風格 / 現代美式輕奢
設計施工 / 浙江南鴻裝飾
01.
客戶需求
本案的男業主性格開朗健談,喜愛旅游和音樂,夫妻倆與父母和孩子住在一起,是標準的三代同堂居室,配色上要求時尚耐看。
02.
裝飾亮點

本案在硬裝上采用全屋護墻板,組合上不銹鋼線條,呈現非常有質感有層次的輕奢細節。張弛有度的設計處理,強化了對空間框架和秩序的知覺,為屋主營造出頗具儀式感的生活氛圍。
03.
戶型分析
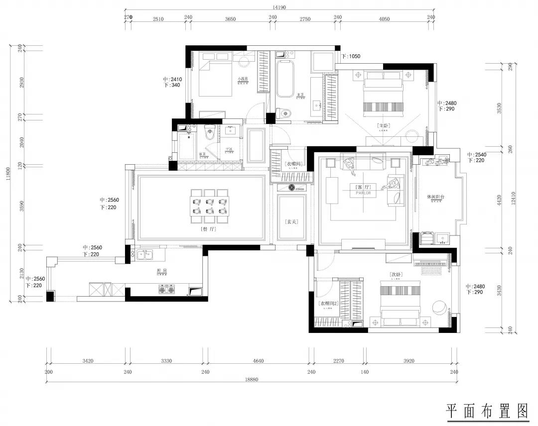
原始結構圖?


?平面戶型圖
進門玄關尺寸加深;餐廳和主臥寬度加大,更顯寬敞明亮;客衛做干區方便老人和孩子日常使用。
04.
設計落地
玄 關


玄關與客餐廳之間的貫連性極好,視線通暢,整體性強。為了對生活場景進行有效區分,設計師用波瀾紋理的柜體、裝飾畫與些許擺件,營造出頗具藝術性和跳動感的玄關景致。
客 廳


客廳以明亮的銀灰色為主基調,進一步放大寬闊感,并省去了所有繁復的裝飾,以軟裝的色彩點綴和硬裝的線條來勾勒空間的整體層次。同時,沙發、地毯、吊燈、電視柜的材質與顏色,也賦予空間強烈的輕奢質感。



沙發背景墻是全屋統一的木做護墻添加入金色不銹鋼線條,淺棕色的主沙發平衡空間情緒,溫和視線。

電視背景采用硬包,兩邊作對稱設計并嵌入隱形門,統一性和秩序感突出。
餐 廳



餐廳打掉墻體之后,擁有了十分寬敞的就餐區域,扎實的餐桌描摹出沉穩的主旋律。公共區域整體通鋪同花色地磚,用一種材質來保證大空間內的視覺整體性。
廚 房

廚房區域較為狹長,因此做并行式布局來節省空間并精簡動線。白色的櫥柜與臺面簡潔清爽,陽臺一側設置了休閑吧臺,不浪費每一寸好風光。
臥 室

簡單,其實就是對臥室空間最好的詮釋,就像這間臥房,只保留最基礎的功能,反而更合適日常的休憩。



兒童房主打男孩喜愛的藍色系,飛機樣式的吊燈與長頸鹿玩偶充滿著浪漫的想象,將活潑的童趣與審美融合得恰到好處。
衛 生 間


主衛內里寬敞,灰色紋理瓷磚傳遞出現代感十足的空間感受。
免費
免費申請戶型規劃
專屬設計師免費1對1全程服務
已經有3770人申請
24小時免費咨詢電話
400-8800-618
你家預算
108080元