
【悅西臺】超高利用率搭載雙露臺,美學性和生活力都拉滿了!

【項目信息】
地址 | 悅西臺
城市 | 中國 杭州
戶型 | 三室兩廳
面積 | 110㎡
風格 | 現代極簡
設計施工 | 浙江南鴻裝飾
極簡的空間力呈設計的美,外在的“無一物”恰對應內在的豐盈,在此間盡情收獲放松和沉淀。

本案采用當下流行的現代極簡風格,大量使用深色肌理感藝術漆,搭配黑色系的柜體和家具,打造深沉酷雅的空間美學。整體高度統一的調性,讓人沉醉于其中而流連忘返。
戶型在經過改造后利用率變得非常高,兩個大露臺為都市生活人提供難得的精神享受,冬日可以靜沐暖陽,夏夜仰觀星辰,無窮的天地意趣,就這樣納藏入居者的胸懷。

· 戶型設計

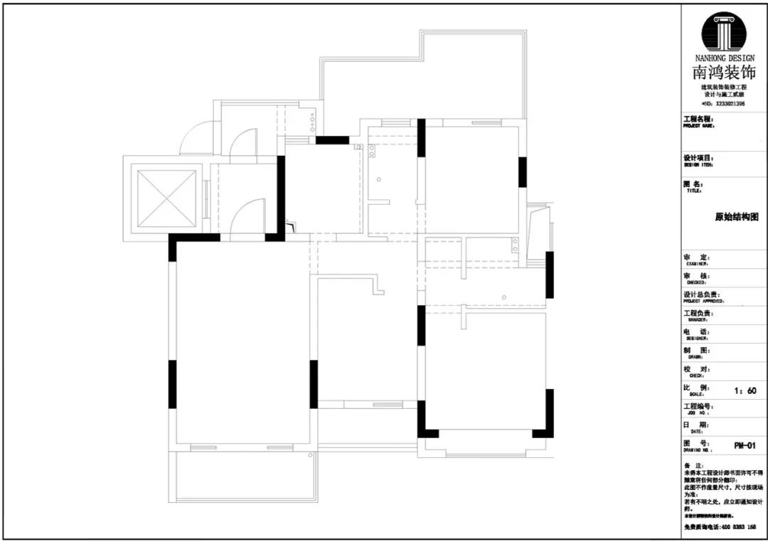
>>原始戶型圖

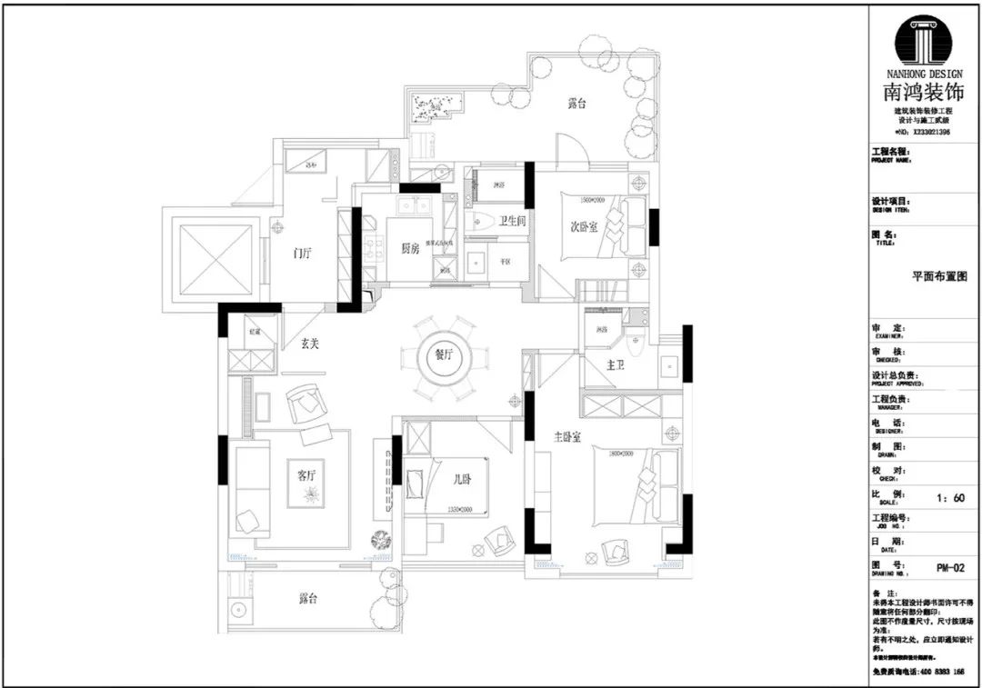
平面方案圖<<

入戶玄關通過一個鏤空的隔斷打造出必要的儀式感,與客廳之間也有了優雅的過渡,統一的黑色視覺處理,強化整體性的同時,又不乏設計感的呈現。

極簡是現代風格中永不褪色的時尚。簡單的空間外形反襯得室內單品更有質地與光澤,色彩和紋理壓縮到極致,卻讓設計美學有了最大化的呈現。

陽臺打造家庭小花園,在花花草草的簇擁下,開啟每一日的舒適生活。



灰色的藝術漆擁有著斑駁肌理,包裹出空間素樸的安全感和文藝質地。軟裝上契合全屋的極簡調性,純粹的高級感黑色,創造了一個能夠吸收所有噪音和繁瑣的場域,轉化出柔和平靜的能量。

餐廳的風格與客廳一脈相承,餐桌使用黑色巖板圓桌,搭配極簡風皮質餐椅,墻面用掛畫和時鐘做簡約的裝飾,低調烘托雅致的氛圍。地面通鋪了啞光淺灰色地磚,使得整體公區域的視覺體驗更加連貫。



高級的留白藝術,讓餐廳瞬間化身為時尚感爆棚的氣質場!

走廊部分設計有前后疊合、不斷遞進的藝術視覺處理,塑造飽滿靈動性的同時,也進一步拓展了當代潮流的家居情景。

廚房內部做U字形設計,下廚操作穩當而便捷,深色空間彰顯出與眾不同的啞光質感,也最大程度地避免了日常油污的煩惱。



空間材質與色彩搭配的一以貫之,是極簡美學的核心之一。主臥沿用藝術漆的肌理質感,低飽和度的色系將空間淺淡、靜宜的氛圍表現得淋漓盡致。

干凈柔和的次臥空間,用最樸實的外形醞釀起日積月累的幸福。陽臺擺放座椅茶幾,可以讀一讀書,看這座城市的朝陽落日,悠閑地享受每一段美妙時刻。



兒臥用半墻設計鋪陳出簡約的層次感,懸浮式的學習桌與墻面融為一體,打造舒適的視覺感。柜體一側開出收納格,供擺放一些隨手拿取的物件,保證了日常的整潔度。



黑色系的衛浴空間天然就具有時尚輕奢的氛圍感,秩序與儀式之間,慢慢塑出生活的溫度。
免費
免費申請戶型規劃
專屬設計師免費1對1全程服務
已經有3769人申請
24小時免費咨詢電話
400-8800-618
你家預算
108080元